
商品内容
当社の既存車両を改良し開発した、4人~6人乗りのバッテリーカーです。
デザインは変更可能です。
主な機能
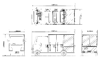
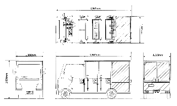
寸法図
主要諸元(6人乗り)
| 項 目 | 仕 様 |
| 定 員 | 6名 (こども 5名 運転者 1名) |
| 車両サイズ(mm) | L4000XW1400XH2100 |
| 重 量 | 約700kg |
| 積 載 荷 重 | 280kg |
| 速 度 | 約5.0km/h |
| バッテリー | SLH100X2 |
| 稼働時間 | 約2時間 |
| 機 能 | パーキングブレーキ |
| BGM | |
| ハザードランプ |
主要諸元(4人乗り)
| 項 目 | 仕 様 |
| 定 員 | 4名 (こども3名 運転手1名) |
| 車両サイズ(mm) | L3000XW1200XH17800 |
| 重 量 | 約400kg |
| 積 載 荷 重 | 200kg |
| 速 度 | 約5.0km/h |
| バッテリー | SLH100X2 |
| 稼働時間 | 約3時間 |
| 機 能 | パーキングブレーキ |
| BGM | |
| ハザードランプ |









